Current Location:Accueil du site >>Produits >>La chambre pliable
Current Location:Accueil du site >>Produits >>La chambre pliable
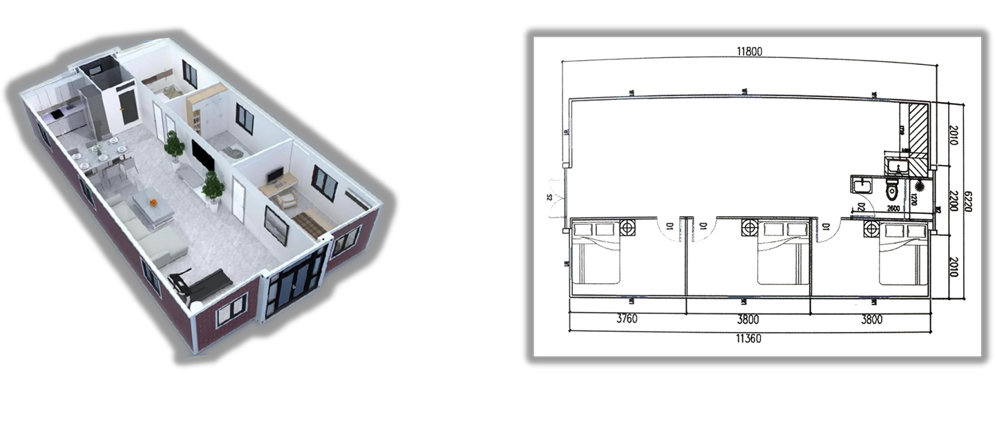
Détails: maison pliante de 73 m2
Ce modèle est adapté pour 6-8 personnes. Les grands espaces offrent une expérience de vie très luxueuse. Nous offrons un service personnalisé aux clients qui achètent ce produit. Les clients peuvent concevoir la disposition de la pièce selon leurs besoins.
|
Le modèle |
Maison pliante extensible de 40 pieds |
|
|
Le plan |
3 chambres, 1 salon, 1 cuisine et 1 salle de bain |
|
|
La taille |
Taille de mise en page: L11800mm*W6220mm*H2480mm
|
|
|
Dans le cadre de |
3mm |
Tube carré galvanisé |
|
La base |
18mm |
Panneaux de ciment |
|
La fenêtre
|
10 + 1 unités |
Pont rompu double fenêtre en aluminium |
|
verre |
5mm+10mm+5mm |
Double vitrage isolant |
|
Le mur |
65mm |
Laine de roche réfractaire + panneau sandwich en acier coloré |
|
Les câbles |
6mm2/10mm2 |
Commutateur principal et prise selon les exigences du client |
|
Les toilettes |
l’installation |
Lavabo, armoire de salle de bain, toilette, douche, porte coulissante en verre, drain au sol
|
|
La cuisine |
l’installation |
L |
|
Le toit |
Les trois coins |
facultative |
|
Un balcon prolongé |
Largeur de 2m / 3m |
facultative |
|
Quantité de chargement |
1* conteneur 40HQ pour 1 pc |
|

Affichage de l’installation
